Groove profiles
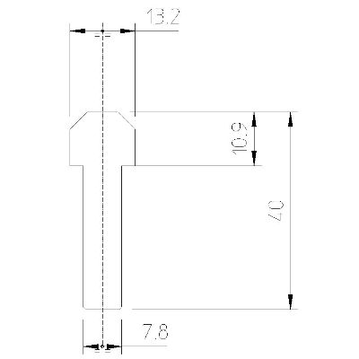
											 Cod. SA80001   NEW B1020-004511
										
									 
										08Mushroom-shaped profile MS13 with H=32mm, for groove
Material: Polizene 1000
Colour: black
Delivery condition: 2 m bar
Available upon request. Delivery to be agreed upon.
 
                            


